首页
光伏安装图纸变量表怎么看
返回

光伏安装图纸变量表怎么看

2023-11-27 综合百科 By:佚名
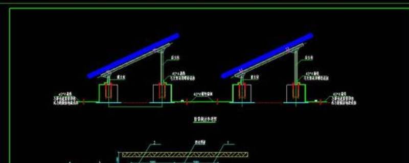
最佳答案1、图纸中会标注出各个部件的尺寸,一般是用毫米或英寸表示。尺寸标注可以帮助制造商确定材料的大小和数量。2、图纸中会标注出产品的结构,包括各个部件之间的连接方式和装配顺序。这些信息可以帮助制造商组装产品并确保其正常运行。3、图纸中会标注出各个部件使用的材料,包括金属、塑料、玻璃等。...

1、图纸中会标注出各个部件的尺寸,一般是用毫米或英寸表示。尺寸标注可以帮助制造商确定材料的大小和数量。

2、图纸中会标注出产品的结构,包括各个部件之间的连接方式和装配顺序。这些信息可以帮助制造商组装产品并确保其正常运行。

3、图纸中会标注出各个部件使用的材料,包括金属、塑料、玻璃等。这些信息可以帮助制造商选择正确的材料并确保产品的质量。

4、图纸中会标注出产品的组件,包括电池板、逆变器、电缆等。这些信息可以帮助制造商选择正确的组件并确保产品的性能。

猜你喜欢
古琉璃跟香灰琉璃的区别

古琉璃跟香灰琉璃的区别

12-27 0 阅读
友达AUOA08B是高色域显示器吗?如何分辨高色域显示器?

友达AUOA08B是高色域显示器吗?如何分辨高色域显示器?

10-31 0 阅读
开店一定要有自己的佛堂吗

开店一定要有自己的佛堂吗

10-09 0 阅读
医疗百科:1mm极限薄骨内提术

医疗百科:1mm极限薄骨内提术

08-28 0 阅读
1582年的日历表为什么少了十天

1582年的日历表为什么少了十天

12-12 0 阅读
淘宝店铺头像怎么设置

淘宝店铺头像怎么设置

12-20 0 阅读
热门推荐
性变是啥意思(性变是什么意思严重吗)

性变是啥意思(性变是什么意思严重吗)

01-03 0 阅读
自体免疫细胞储存(免疫细胞储存)

自体免疫细胞储存(免疫细胞储存)

10-27 0 阅读
长门有希的消失(关于长门有希的消失的基本详情介绍)

长门有希的消失(关于长门有希的消失的基本详情介绍)

01-01 0 阅读
我弟在工地受伤,找当地部门快一个月,至今无门路怎么办,我想请有关人事帮忙

我弟在工地受伤,找当地部门快一个月,至今无门路怎么办,我想请有关人事帮忙

11-01 0 阅读
车上有东西可以使用拖车不,是在南京?

车上有东西可以使用拖车不,是在南京?

12-03 0 阅读
erp有用吗

erp有用吗

10-31 0 阅读
儿子是词根还是词缀

儿子是词根还是词缀

12-20 0 阅读
杭州中宸城镇建设有限公司(关于杭州中宸城镇建设有限公司的简介)

杭州中宸城镇建设有限公司(关于杭州中宸城镇建设有限公司的简介)

12-31 0 阅读
神舟承运l840t评测(神舟承运l840t)

神舟承运l840t评测(神舟承运l840t)

01-03 0 阅读
天地粮人(关于天地粮人的基本详情介绍)

天地粮人(关于天地粮人的基本详情介绍)

12-30 0 阅读